Полка выдвижная 19" для шкафов и стоек Cabeus JE05-600
Выдвижная полка четырехточечного крепления предназначена для установки в настенные и напольные шкафы Cabeus, глубиной 600мм.
Используется для размещения технологического оборудования, не имеющего стандартного 19” крепления или для оборудования, обслуживание которого требует регулярного извлечения его из шкафа.
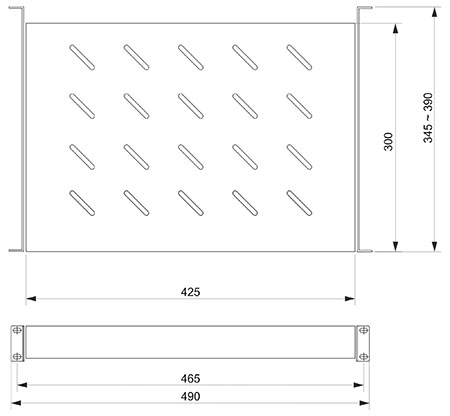
Полка имеет перфорацию, позволяющую охлаждать технологическое оборудование.
Максимально разрешенная нагрузка – 20 кг. Покрытие – порошковая ударопрочная краска, светло-серая (RAL7035). Толщина стали составляет 1,3 мм.
Установка выдвижной полки производится путем крепления на направляющие 19” с помощью стандартного крепежа – квадратных гаек, винтов М6 и пластиковых шайб.
Крепежные элементы используются из набора элементов крепления шкафа или приобретаются отдельно.

Сообщения не найдены